Skip to content

Splendido appartamento in piazza Amendola

5 pezzi
4 camere da letto
2 bagni
1.940.000 €
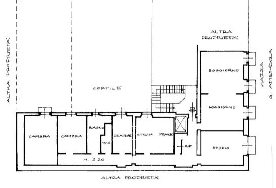
In piazza Amendola, in uno splendido palazzo d’epoca anni ’20, recentemente restaurato nelle parti comuni, Barnes International Realty propone in vendita un ampio appartamento di grande fascino, situato al terzo piano con ascensore.
L’abitazione si compone di ingresso, doppio soggiorno con affaccio scenografico, studio, cucina abitabile, tre camere da letto e due bagni, di cui uno finestrato.
Grazie alla distribuzione razionale degli spazi è facilmente possibile ricavare una quarta camera da letto.
L’immobile conserva intatto il sapore dell’epoca grazie a dettagli originali di pregio: parquet e cementine, stucchi a soffitto, caloriferi in ghisa e soffitti alti.
Il soggiorno affaccia sulla piazza, con una vista aperta e ariosa su Citylife. La zona notte invece è esposta sul cortile interno, garantendo silenzio assoluto.
Completano la proprietà una cantina e un solaio. Le parti comuni sono di assoluto pregio, con ascensore Stigler, scale eleganti e servizio di portineria giornaliero.
È inoltre disponibile un box auto nello stabile, con richiesta a parte.
Per maggiori informazioni o per fissare una visita siete pregati di contattare i nostri uffici chiamando lo 0236533371 o scrivendo allo milan@barnes-international.com
Maggiori informazioni

Informazioni sulla tua proprietà

Riferimento agenzia
86687617
Zona/Quartiere
Amendola - Buonarroti none
Tipo di immobile
Appartamento
Superficie
230 m²
Anno di costruzione
1920
Zone soggette a regolamentazione degli affitti
Si
Prezzo
1.940.000 €
Spese
600 €
Camere
5 pezzi
Camere da letto
4 camere da letto
Bagno con doccia
2 doccia/bagni
Livelli
livelli 1
Piano
Ascensore
Si

Appartamento Milano - 230 M²

AppartamentoMilano - 230 M²
1.940.000 €

Sveva

SPALLETTI

Scopra l'agenzia
Questo campo è obbligatorio
Questo campo è obbligatorio
Questo campo è obbligatorio
Questo campo è obbligatorio
Questo campo è obbligatorio

Barnes España

Altre proprietà nella zona

Le mie proprietà visualizzate di recente

Sei interessato a una proprietà di prestigio?

Ricevi le ultime novità sul mercato immobiliare di lusso e sui nostri eventi.